Schilling Dachsysteme

Schilling S2100 Mehr

Thermisch getrenntes Profilsystem mit Bauhöhen von 85 bis 145 mm. Durch die einfachere Wandanschluss- und Traufausbildung werden die Träger entsprechend der Dachneigung zugeschnitten. Preisgünstige Variante zu der Serie 1000. Dieses Dachsystem eignet sich für unbeheizte und beheizte Wintergärten zur ganzjährigen Nutzung.

Vorteile

  • In allen Farben der RAL Palette, DB und Holznachbildung lieferbar
  • Optimales Preis-Leistungs-Verhältnis
  • Isolierglas, Sicherheitsverglasung (VSG, ESG) von 26 bis 32 mm Zweifachglas einsetzbar
  • Dekoratives Aufsatzprofil für die Dachrinne (optional)
  • Ausladung der Dächer bis ca. 6000 mm Tiefe ist ohne eine Stahlunterkonstruktion
  • Produziert und getestet konform DIN EN 1090 und DIN EN 1991 (Euro Code)
  • Vielfalt der Dachformen
  • LED Beleuchtung (optional)
  • Verdeckte Regenwasserablaufrohr (optional)

Schnittzeichnungen, Galerie von Dach-System S2100

Schilling S1000 Mehr

Thermisch getrenntes Profilsystem mit einer ansprechenden Profilgeometrie. Durch die hohen und durchgängigen Iso - Stege wird eine gute Wärmedämmeigenschaft erreicht. Die Kriterien der EnEv vom 21.11.2001 werden durch den Einsatz einer entsprechenden Dachverglasung und Elemente erfüllt. Dadurch eignet sich dieses Dach - System zur Wohnraumerweiterung mit ganzjähriger Nutzung. System S 1000 wird bei Wintergärten mit Zwei - oder Dreifachglas genutzt. Mit diesem Dach-System kann man die Wintergärten in verschiedenen und komplizierten Formen bauen.

Vorteile:

  • In allen Farben der RAL Palette, DB und Holznachbildung lieferbar
  • Isolierglas, Sicherheitsverglasung (VSG, ESG) von 24 bis 46 mm Zwei- oder Dreifachglas einsetzbar
  • Dekoratives Aufsatzprofil für die Dachrinne (optional)
  • bei niedrigen Höhen des Wintergartens anwendbar
  • Ausladung der Dächer bis ca. 6000 mm Tiefe ist ohne eine Stahlunterkonstruktion
  • Produziert und getestet konform DIN EN 1090 und DIN EN 1991 (Euro Code)
  • Vielfalt der Dachformen
  • LED Beleuchtung (optional)
  • Verdeckte Regenwasserablaufrohr (optional)

Schnittzeichnungen, Galerie von Dach-System S1000

Schilling S1000plus Mehr

Die Serie 1000 plus ist die logische Fortführung der bewährten Technik der Serie 1000. Thermisch getrenntes Profilsystem mit einer innovativen Profilgeometrie. Durch die modifizierten Iso - Stege wird eine gute Wärmedämmeigenschaft erreicht. Die Kriterien der EnEv vom 21.11.2001 werden durch den Einsatz einer entsprechenden Dachverglasung und Elemente erfüllt. Dadurch eignet sich dieses Dach - System zur Wohnraumerweiterung mit ganzjähriger Nutzung. Das System S1000 wird genutzt, wo eine große Rolle die hohe Wärmedämmung spielt (bei warmen Wintergärten mit Dreifachverglasung). Die Dachrinne zeichnet sich durch eine gute Biegefestigkeit aus. Dadurch können wir breitere Wintergärten ohne Zwischenträger bauen. Das gilt vor allem als Vorteil, wenn der Kunde Aluminiumfalttür oder Hebeschiebetür (HST) geplant hat.

Vorteile

  • bessere Schutz gegen Wind und Wasser mit einer Systemlösung für die Verbindung zwischen Dachkonstruktion und Wände (bis zu 85mm Einbaustärke)
  • In allen Farben der RAL Palette, DB und Holznachbildung lieferbar
  • Isolierglas, Sicherheitsverglasung (VSG, ESG) von 24 bis 50 mm Zwei - oder Dreifachglas einsetzbar
  • Ausladung der Dächer bis ca. 6000 mm Tiefe ist ohne eine Stahlunterkonstruktion
  • Produziert und getestet konform DIN EN 1090 und DIN EN 1991 (Euro Code)
  • Vielfalt der Dachformen
  • LED Beleuchtung (optional)
  • Verdeckte Regenwasserablaufrohr (optional)

Schnittzeichnungen, Galerie von Dach-System S1000plus

Schilling S6000i Mehr

Viele von uns sehnen sich danach, naturverbunden zu wohnen und dabei den kurzen und unbeständigen Sommer auf angenehme Art und Weise zu verlängern. Für jede Region, Haustyp und Geschmack gibt es das passende Wintergartendach, das dem Charakter eines Hauses ein unvergleichbares, architektonisches Gesicht verleiht und neben der Wohn- und Lebensqualität auch den Gesamtwert der Immobilie nachhaltig steigert. Die neue Profilserie S6000i wurde im Hinblick auf eine hervorragende Energieeffizienz entwickelt und die hohen Vorgaben der Energieseinsparverordnung übertrifft und damit die beste Lösung in alle Hinsicht ist. Das Dachsystem wird genutzt, wo die Wärmedämmung dem Kunden am wichtigsten ist. Die wärmste, pasive Wintergärten werden mit Drei - oder Vierfachverglasungen ausgetattet. Seher gute Biegefestigkeit der Profilen ermöglichtst noch größere Bautiefen für Funktionselemente (z. B. Hebe-Schiebeanlagen, breite Faltüren) zu erreichen.

Vorteile

  • Deutlich verbesserte Wärmedämmwerte – U-Werte von 0,92 W/(m²K) sind erreichbar
  • bessere Schutz gegen Wind und Wasser mit einer Systemlösung für die Verbindung zwischen Dachkonstruktion und Wände (bis zu 95mm Einbaustärke)
  • In allen Farben der RAL Palette, DB und Holznachbildung lieferbar
  • Isolierglas, Sicherheitsverglasung (VSG, ESG) von 28 bis 50 mm Zwei- bis Vierfachglas einsetzbar
  • Produziert und getestet konform DIN EN 1090 und DIN EN 1991 (Euro Code)
  • LED Beleuchtung (optional)
  • Verdeckte Regenwasserablaufrohr (optional)

Schnittzeichnungen, Galerie von Dach-System S6000i

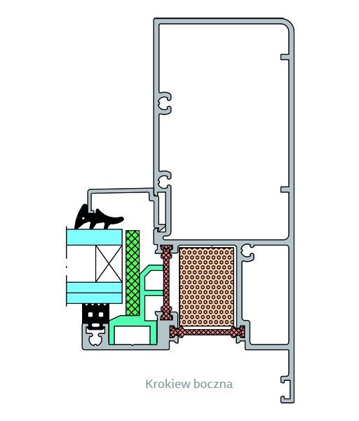
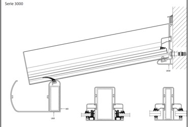
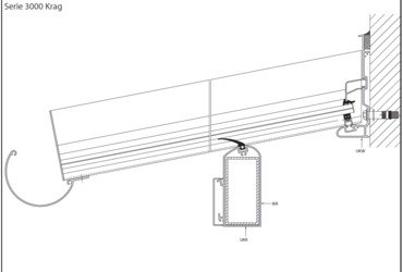
Schilling S3000 Mehr

Die Serie S3000 wurde speziell für Terrassenüberdachungen und Carports aus ungedämmten Profilen (Kaltsystem) entwickelt. Alle Dachformen und Typen können hiermit realisiert werden. Die Merkmale des drehbaren Wandanschlusses wurden von der innovativen Serie 1000 übernommen. Dieses Dach-System wird auch bei nicht isolierten Sommergärten genutzt.

Vorteile

  • In allen Farben der RAL Palette, DB und Holznachbildung lieferbar
  • Die verstärkte Dachrinne ohne Zwischenträger bis zu 6300mm (unter Vorbehalt bestimmten Bedingungen)
  • Ausladung der Dächer bis ca. 6500 mm Tiefe ist ohne eine Stahlunterkonstruktion
  • Sicherheitsverglasung (VSG) 8 bis 26 mm, Monoglas einzetzbar
  • Produziert und getestet konform DIN EN 1090 und DIN EN 1991 (Euro Code)
  • Vielfalt der Dachformen
  • LED Beleuchtung (optional)
  • Verdeckte Regenwasserablaufrohr (optional)

Schnittzeichnungen, Galerie von Dach-System S3000

Whatsapp
×
Indem Sie auf „Zustimmen“ klicken, akzeptieren Sie das Speichern aller Cookie-Daten auf Ihrem Gerät. Wenn Sie auf Ablehnen klicken, werden nur die Daten gespeichert, die für die Funktion der Website erforderlich sind. Weitere Informationen zu Cookie Weitere Informationen zu Cookies finden Sie in der Datenschutzerklärung.

Wesentliche Cookies

Diese Cookies sind für das Funktionieren der Website erforderlich und können nicht deaktiviert werden. Sie werden beispielsweise verwendet, um den Inhalt des Warenkorbs des Benutzers zu pflegen. Sie können Ihren Browser so einstellen, dass er diese C

Immer aktiv

Analytische Cookies

Mit diesen Cookies können Sie Besuche und Verkehrsquellen zählen. Dank dieser Dateien ist bekannt, welche Seiten beliebter sind und wie die Website-Besucher navigieren. Alle Informationen, die diese Cookies sammeln, sind anonym.

Marketing-Cookies

Werbe-Cookies können auf unserer Website von unseren Werbepartnern verwendet werden. Sie werden verwendet, um ein Profil Ihrer Interessen auf der Grundlage von Informationen über die von Ihnen aufgerufenen Seiten zu erstellen, einschließlich der eindeutigen Identifizierung Ihres Browsers und Ihres Endgeräts. Wenn Sie diese Cookies nicht zulassen, wird Ihnen in Ihrem Browser dennoch einfache Werbung angezeigt, die nicht auf Ihren Interessen basiert.